In het centrum van osdorp maar wel in rustige straat alles op 5 min loopafstand.
Beton woning parken in de buurt zondag gratis parkeren en doordeweeks heel goedkoop parkeren.
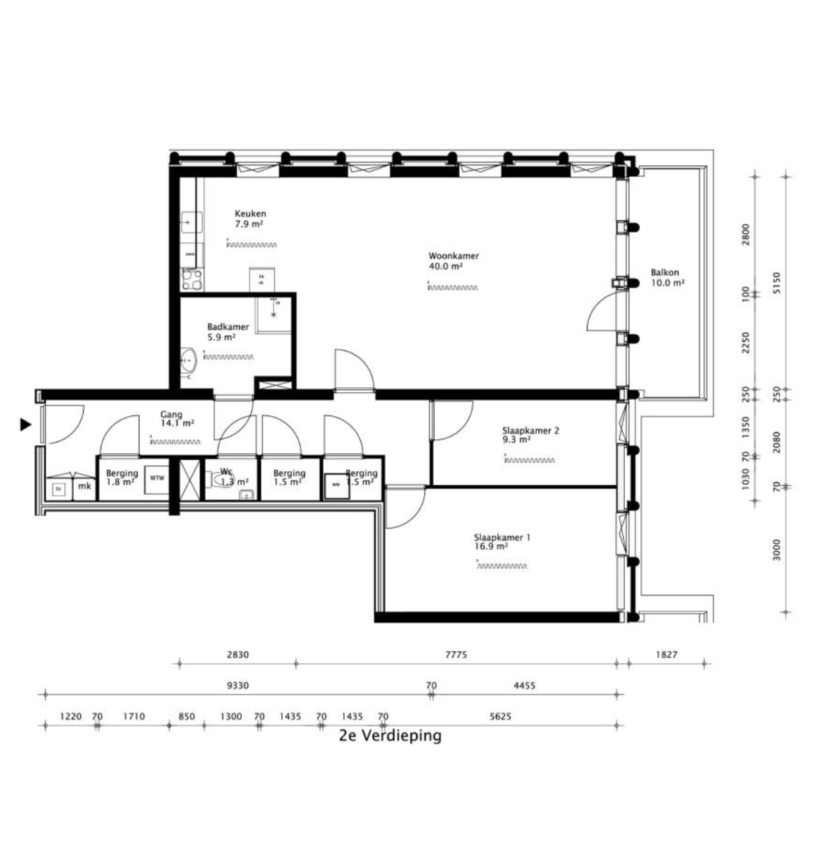
De woning
- appartement
- 2 slaapkamers
- 52 m2 woonoppervlak
Voorzieningen
- CV-ketel
- Glasvezel
- Balkon
- Berging
- Betaald parkeren
- CV-ketel
- Glasvezel
- Balkon
- Berging
- Betaald parkeren
De buurt
- Supermarkt
- Winkels
- Bushalte
- Treinstation
- Park
- Speeltuin
- Basisschool
- Kinderdagopvang
- Middelbare school
- Sportschool
- Supermarkt
- Apotheek
- Supermarkt
- Winkels
- Bushalte
- Treinstation
- Park
- Speeltuin
- Basisschool
- Kinderdagopvang
- Middelbare school
- Sportschool
- Supermarkt
- Apotheek
Ligging
- In het centrum
- Aan rustige weg
- In woonwijk
- In het centrum
- Aan rustige weg
- In woonwijk
Locatie
Overleg 104 1068RM , Amsterdam (Etage: 1)


 
                         
                         Nabila
                                                Nabila
                     
                    